Asking Price £375,000

4 bed detached house for sale in Southern Court, Burnley, BB12 (ref: 686582)

FacebookSend to a friend Shortlist

Key Features

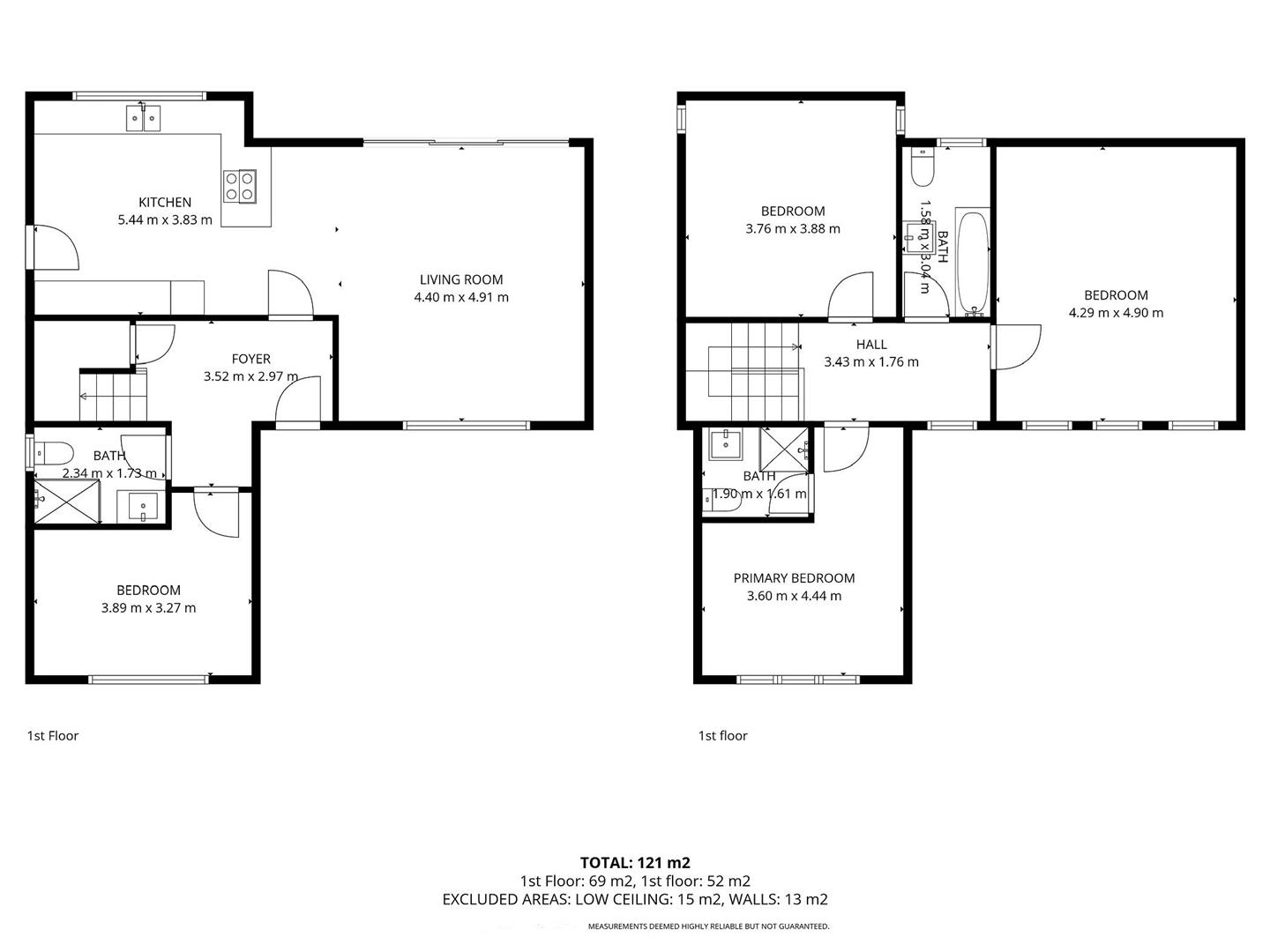
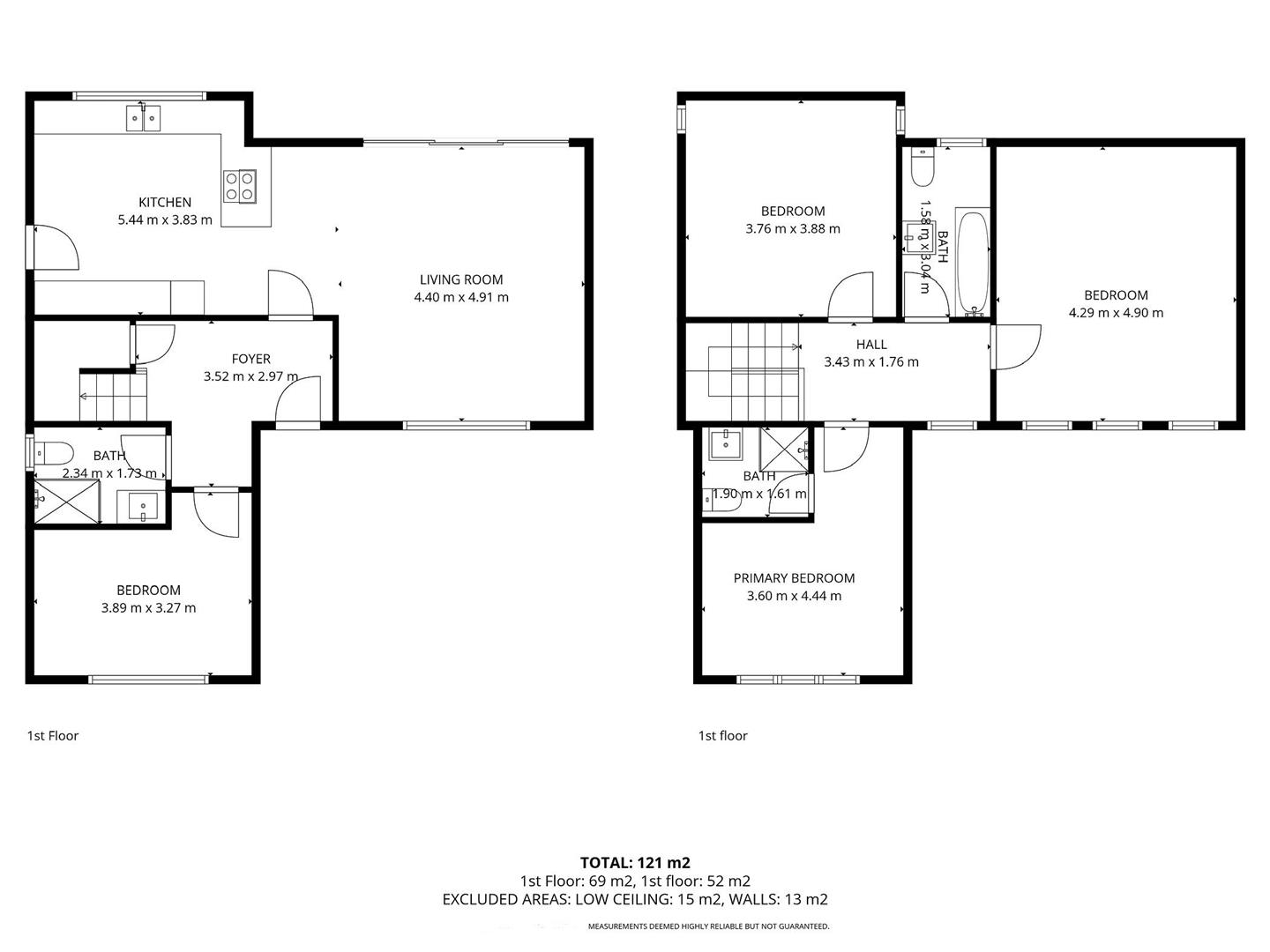
  • 4 Bedrooms
  • En-Suite Bedroom
  • Stunning Features
  • Driveway
  • Quiet Location
  • Solar Panels
Brand New 3-Bed Detached Home – Private Plot off Ightenhill Park Lane

Discover modern living at its finest with this stunning newly built 3/4 bedroom detached property, perfectly positioned on a private plot just off the highly sought-after Ightenhill Park Lane.

Built to an exceptional standard throughout, this home offers contemporary style, quality finishes, and thoughtful design, ideal for families, professionals, or anyone seeking a peaceful home close to Burnley’s best amenities.

Property Highlights

Fully modernised with high-spec fixtures and finishes

Four Spacious Bedrooms – Ideal for family living

Modern Kitchen & Bathrooms – Stylish and practical with quality fittings

Bright & Airy Living Spaces – Designed for comfort and entertaining

Private Driveway – Off-road parking for convenience

Rear Garden – A secure and quiet outdoor space to relax or entertain

Exclusive Location – Tucked away on a private plot off Ightenhill Park Lane, offering privacy while remaining close to schools, parks, shops, and transport links

This is a rare opportunity to purchase a brand new detached home in a premium location. Ready to move straight into, no onward chain.

Enquire today to arrange your viewing.

What this property offers

  • Energy Efficient
  • Garden
  • No Onward Chain
  • Parking and/or Driveway

Stamp duty due

Based on a sale price of £375,000 the total amount of stamp duty payable will be:

*

Last updated: The calculator has been updated to reflect changes in stamp duty following the Mini Budget on 23rd September 2022.

* This value is based on the standard rate and not applicable to first-time buyers or buy-to-let / second home buyers.

34 Property images

4 bed detached house for sale in Southern Court, Burnley 0

4 bed detached house for sale in Southern Court, Burnley 1

4 bed detached house for sale in Southern Court, Burnley 2

4 bed detached house for sale in Southern Court, Burnley 3

4 bed detached house for sale in Southern Court, Burnley 4

4 bed detached house for sale in Southern Court, Burnley 5

4 bed detached house for sale in Southern Court, Burnley 6

4 bed detached house for sale in Southern Court, Burnley 7

4 bed detached house for sale in Southern Court, Burnley 8

4 bed detached house for sale in Southern Court, Burnley 9

4 bed detached house for sale in Southern Court, Burnley 10

4 bed detached house for sale in Southern Court, Burnley 11

4 bed detached house for sale in Southern Court, Burnley 12

4 bed detached house for sale in Southern Court, Burnley 13

4 bed detached house for sale in Southern Court, Burnley 14

4 bed detached house for sale in Southern Court, Burnley 15

4 bed detached house for sale in Southern Court, Burnley 16

4 bed detached house for sale in Southern Court, Burnley 17

4 bed detached house for sale in Southern Court, Burnley 18

4 bed detached house for sale in Southern Court, Burnley 19

4 bed detached house for sale in Southern Court, Burnley 20

4 bed detached house for sale in Southern Court, Burnley 21

4 bed detached house for sale in Southern Court, Burnley 22

4 bed detached house for sale in Southern Court, Burnley 23

4 bed detached house for sale in Southern Court, Burnley 24

4 bed detached house for sale in Southern Court, Burnley 25

4 bed detached house for sale in Southern Court, Burnley 26

4 bed detached house for sale in Southern Court, Burnley 27

4 bed detached house for sale in Southern Court, Burnley 28

4 bed detached house for sale in Southern Court, Burnley 29

4 bed detached house for sale in Southern Court, Burnley 30

4 bed detached house for sale in Southern Court, Burnley 31

4 bed detached house for sale in Southern Court, Burnley 32

4 bed detached house for sale in Southern Court, Burnley 33

Further Details

  • New Listing: Launched in the last 10 days
  • Status: Available
  • Tenure: Freehold
  • Tags: Energy Efficient, Garden, No Onward Chain, Parking and/or Driveway
  • Reference: 686582

Location

Similar priced properties

4 bed commercial property for sale in Lyndhurst Road, Burnley, BB10
£145,000
4 bed commercial property for sale in Lyndhurst Road, Burnley, BB10
4 1 1

Exciting Investment Opportunity: 4-Bedroom Apartment & Commercial Shop –...
4 bed detached house for sale in Kingfisher Mews, Wombwell, S73
Offers in Region of £280,000
4 bed detached house for sale in Kingfisher Mews, Wombwell, S73
4 2 2

A Stunning Modern Family Home in a Prime Location Nestled within a sought-after...
4 bed detached house for sale in Hallwood Close, Burnley, BB10
Offers in Region of £280,000
4 bed detached house for sale in Hallwood Close, Burnley, BB10
4 3 2

For Sale – 10 Hallwood Close, Reedley, Burnley BB10 Spacious 4-Bedroom...